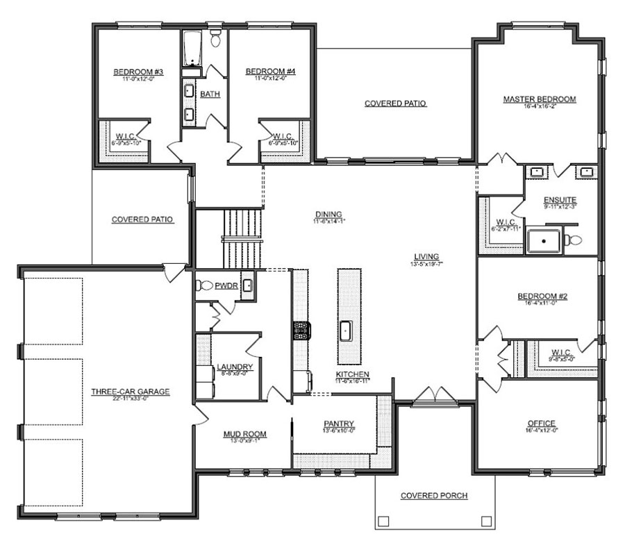
This spacious one-storey, 3240 sq. ft. home blends comfort, functionality, and open design, ideal for both family living and entertaining. Upon entering from the welcoming covered front
porch, you’re immediately greeted by an open-concept layout where the kitchen, dining, and living areas flow seamlessly together. The kitchen features a large central island and is backed by a substantial walk-in pantry, perfect for storage and organization.
To the right side of the home lies a private wing that includes the master suite, complete with a luxurious ensuite bathroom and a generous walk-in closet. This wing also hosts a secondary bedroom, ideal for a child or guest, and a spacious office situated at the front of the home for privacy and natural light.
The left side of the home is designed with families in mind, featuring two additional bedrooms, each with its own walk-in closet, and a shared full bathroom. A powder room is conveniently located nearby for guests.
Functionality is further emphasized with a mudroom, laundry room, and direct access to a three-car garage, making daily routines and organization easy. Two covered patios at the rear extend the living space outdoors, providing ideal spots for relaxation or hosting gatherings, ideal for both family living and entertaining.

Visit TIMBER MART for more information about home plan TBM3240







