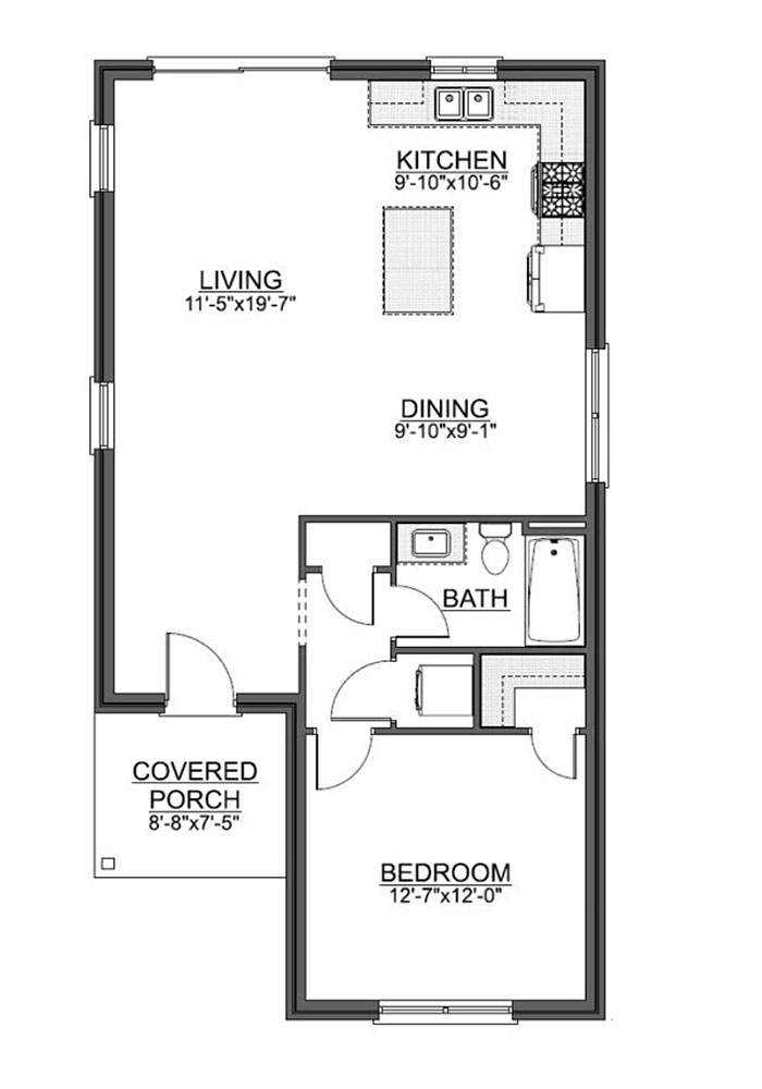
This 875-square-foot tiny home maximizes space and functionality while offering a comfortable living experience. The layout features a cozy one-bedroom, ideal for relaxation and rest. The home includes a convenient laundry closet, discreetly tucked away for easy access. The three-piece bath is modern and efficient, equipped with a shower, toilet, and sink, offering everything you need in a compact space. The heart of the home is the open-concept kitchen, seamlessly blending with the dining and living areas, creating a spacious, airy feel. This tiny home design is perfect for those seeking a functional, efficient, and stylish living space with all the comforts of a traditional home in a compact footprint.
To get started, call us at 1-800-563-1807 to place your order or visit your nearest TIMBER MART store for assistance.








